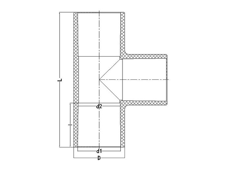
正三通
     
            
       
	
		
			| 
				Nominal | 
			
				Socket Type | 
			
				Structural Diameter | 
		
		
			| 
				SIZE | 
			
				d1 | 
			
				d2 | 
			
				I | 
			
				D | 
			
				d | 
			
				L | 
		
		
			| 
				1/2" | 
			
				22.40 | 
			
				21.52 | 
			
				30.0 | 
			
				29.00 | 
			
				16.0 | 
			
				83.60 | 
		
		
			| 
				3/4" | 
			
				26.45 | 
			
				25.42 | 
			
				35.0 | 
			
				33.10 | 
			
				20.0 | 
			
				100.30 | 
		
		
			| 
				1" | 
			
				32.55 | 
			
				31.37 | 
			
				40.0 | 
			
				40.00 | 
			
				25.0 | 
			
				115.80 | 
		
		
			| 
				1-1/4" | 
			
				38.60 | 
			
				37.31 | 
			
				44.0 | 
			
				46.00 | 
			
				31.0 | 
			
				130.50 | 
		
		
			| 
				1-1/2" | 
			
				48.70 | 
			
				47.21 | 
			
				55.0 | 
			
				57.00 | 
			
				40.0 | 
			
				164.00 | 
		
		
			| 
				2" | 
			
				60.80 | 
			
				59.10 | 
			
				63.0 | 
			
				70.00 | 
			
				51.0 | 
			
				192.00 | 
		
		
			| 
				2-1/2" | 
			
				76.60 | 
			
				75.30 | 
			
				64.0 | 
			
				88.00 | 
			
				72.0 | 
			
				216.00 | 
		
		
			| 
				3" | 
			
				89.60 | 
			
				88.29 | 
			
				64.0 | 
			
				104.60 | 
			
				77.0 | 
			
				227.00 | 
		
		
			| 
				4" | 
			
				114.70 | 
			
				113.20 | 
			
				84.0 | 
			
				134.00 | 
			
				100.0 | 
			
				303.00 |